ODEBÍRAT NOVINKY
Úvod Inspirace Téma Stavba zahájena. První Český soběstačný dům si vystačí se sluncem a deštěm

Stavba zahájena. První Český soběstačný dům si vystačí se sluncem a deštěm

Stavba zahájena. První Český soběstačný dům si vystačí se sluncem a deštěm
22. 11. 2019 / Autor: Lucie Kratochvílová, tisk. z. První Český soběstačný dům. Foto: Český soběstačný dům

Šetrný dům, který si vyrobí veškerou elektrickou energii ze slunce, uloží si ji v bateriích a následně spotřebuje. Zachytí maximum dešťové vody, splachuje s ní a po přečištění využije i třeba ve sprše. Nezbavuje se zbytečně drahocenného tepla, ale přitom se v něm zdravě dýchá a žije. Říkáte si, že je to sen mnoha lidí? Ten se stal ale skutečností. 

O domech, které nepotřebují přípojky k inženýrským sítím, jsme už psali. Projektů zcela soběstačného domu ale u nás moc není. Jsme proto moc rádi a gratulujeme celému týmu Českého soběstačného domu k zahájení stavby prvního soběstačného domu.

Projekt Český soběstačný dům se skládá z odborníků akademické i soukromé sféry, kteří se poslední 4 roky věnovali přípravám právě takovému konceptu domu. První z nich se nyní začal skutečně stavět u Vyššího Brodu v Jižních Čechách. Celý dům si budete moct také postavit, protože jeho plány po dostavbě budou zdarma zveřejněny jako manuál. 

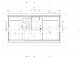
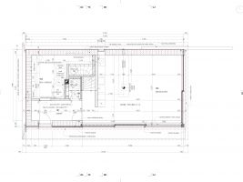
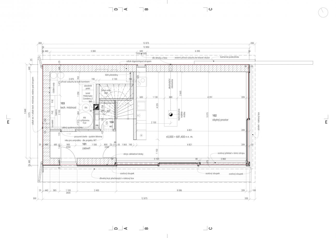
Malý dům bez inženýrských sítí

Důležité bylo vše dopředu připravit a vyladit. Proto již dva roky existuje v Praze testovací laboratoř projektu Český soběstačný dům, ve které jsou umístěny kompletně všechny páteřní technologie s nimiž se počítá do samotné stavby. Volba jednotlivých technologií se řídila především podle spotřeby elektrické energie. Za celým konceptem energetiky stojí pánové Michal Klečka a Pavel Fajmon ze společnosti GWL. Jediným zdrojem elektřiny bude vlastní fotovoltaická elektrárna o instalovaném výkonu 10 kWp, doplněná lithium-fosfátovým bateriovým úložištěm GWL s kapacitou 20 kWh.

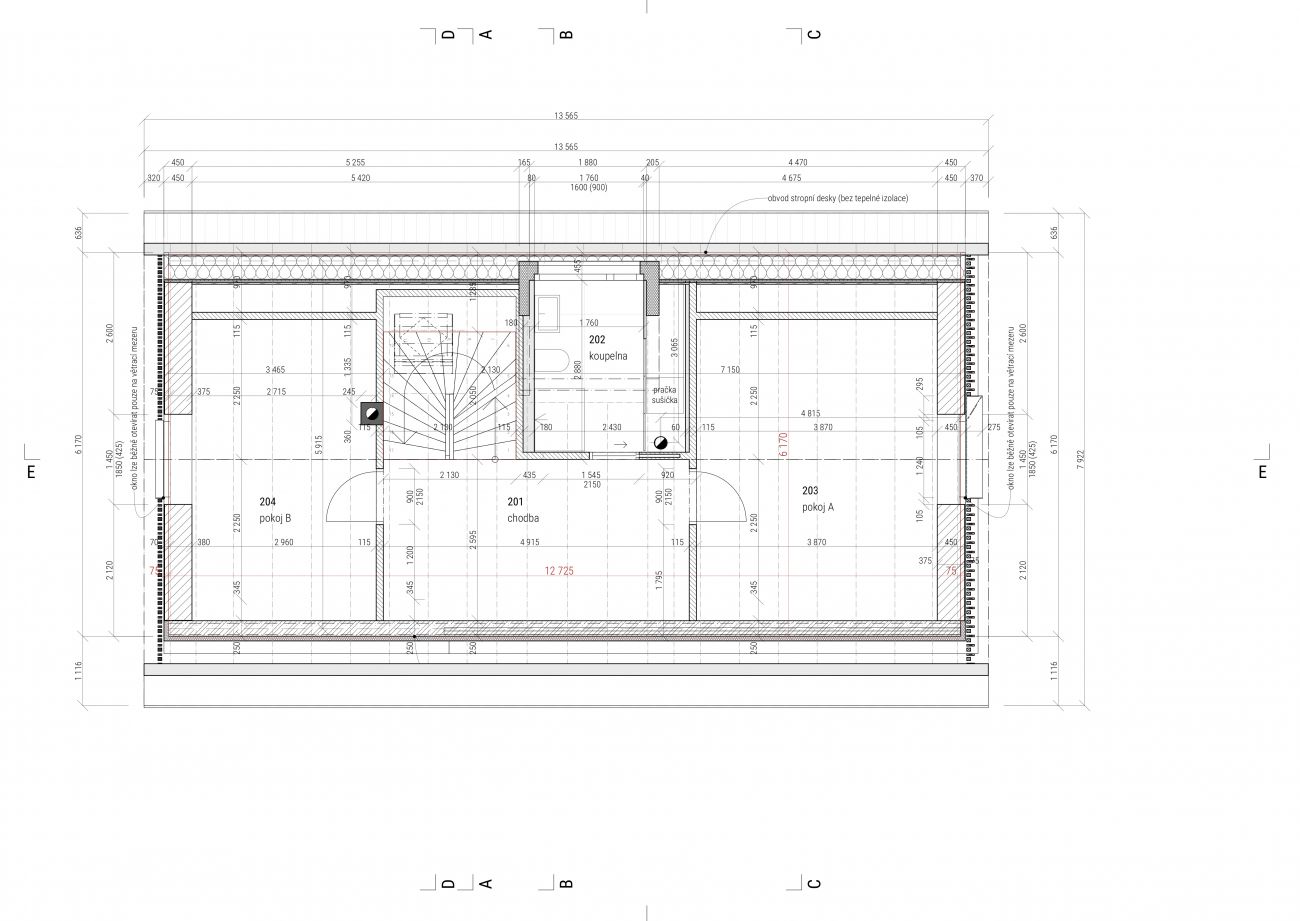
Dům bude stát na samotě v roztroušené zástavbě Hodslavského potoka, poblíž lyžařského areálu Kramolín v Jižních Čechách.  „Naším cílem bylo navrhnout malý, pokorný, poctivý domek s dlouhou životností. I proto jsme se rozhodli pro celokeramickou variantu. Vybrané cihly budou minimalizovat spotřebu energie a pomáhat udržovat tepelný komfort v zimě i v létě, navíc všechny prokazatelně pocházejí z České republiky. Tím největším oříškem je ale samozřejmě rozchodit dům komfortně bez přítomnosti inženýrských sítí. Na to už byl potřeba poměrně široký technický tým. Máme obrovské štěstí na lidi, kteří nám cestou pomáhali a pomáhají,“ popsal základní parametry stavby Pavel Podruh, zakladatel projektu.

Autorem stavebního návhru je architekt Vojtěch Lichý ze studia MLAA, Petr Pávek a další firmy a jednotlivci.

Minimalizace spotřeby pitné vody

Prioritou návrhu vodního hospodářství bylo minimalizovat spotřebu pitné vody z vrtané studny na pozemku. Dešťová voda bude zadržována v podzemní nádrži o objemu 16 kubíků a nahradí tak přibližně polovinu spotřeby pitné vody v porovnání s běžným domem. Následně bude využívána pro splachování, praní, ale i sprchování. 

Průběh stavby můžete sledovat na sociálních sítích Českého soběstačného domu nebo prostřednictvím pravidelného newsletteru v rámci webových stránek projektu.

Diskuze

Doporučené pořady

Díla architektů a designérů
Nový díl

Díla architektů a designérů

Stavba není sen

Stavba není sen

Investování do zahraničních nemovitostí

Investování do zahraničních nemovitostí

Developerské projekty k prodeji

Developerské projekty k prodeji

Už máte klon umělé inteligence?

Už máte klon umělé inteligence?

Chátrající skvosty

Chátrající skvosty

Nejzajímavější hotely

Nejzajímavější hotely

Jak se žije v domě s inteligentní domácností?

Jak se žije v domě s inteligentní domácností?

Přemkovy rychlé rady pro zahrady

Přemkovy rychlé rady pro zahrady

Zdravý spánek

Zdravý spánek

Kuchyně plné inspirace

Kuchyně plné inspirace

Vybíráme krby a kamna

Vybíráme krby a kamna

Koupelny plné inspirace

Koupelny plné inspirace

Když řešíte vodu...

Když řešíte vodu...

Rady pro investice do nemovitostí

Rady pro investice do nemovitostí

Dům na klíč

Dům na klíč

Vybíráme audio do domácnosti

Vybíráme audio do domácnosti

Bydlení handicapovaných

Bydlení handicapovaných

RESTART Michaely Jonášové

RESTART Michaely Jonášové

Bydlení slavných

Bydlení slavných

Na kafe!

Na kafe!

Vybíráme okna

Vybíráme okna

Jak se vyrábí dřevostavby

Jak se vyrábí dřevostavby


Spolupracujeme

Zajímá vás architektura?


© 2025 Living Media s.r.o.
Vytvořeno v Beneš & Michl
Zavřít reklamu