ODEBÍRAT NOVINKY
Úvod Inspirace Interiér Byt v minimalistickém stylu s nádechem minulosti zdobí starý nájemní dům na Praze 1

Byt v minimalistickém stylu s nádechem minulosti zdobí starý nájemní dům na Praze 1

Byt v minimalistickém stylu s nádechem minulosti zdobí starý nájemní dům na Praze 1
25. 2. 2021 / Autor: Štěpánka Šulanová, foto: Studio acht

Byty ve starých nájemních domech mají vždy své kouzlo. Ten v Břehové ulici na Praze 1 díky rekonstrukci získal i něco navíc. V interiéru se prolíná moderní minimalismus s historickými prvky, jaké známe z počátku 20. století.

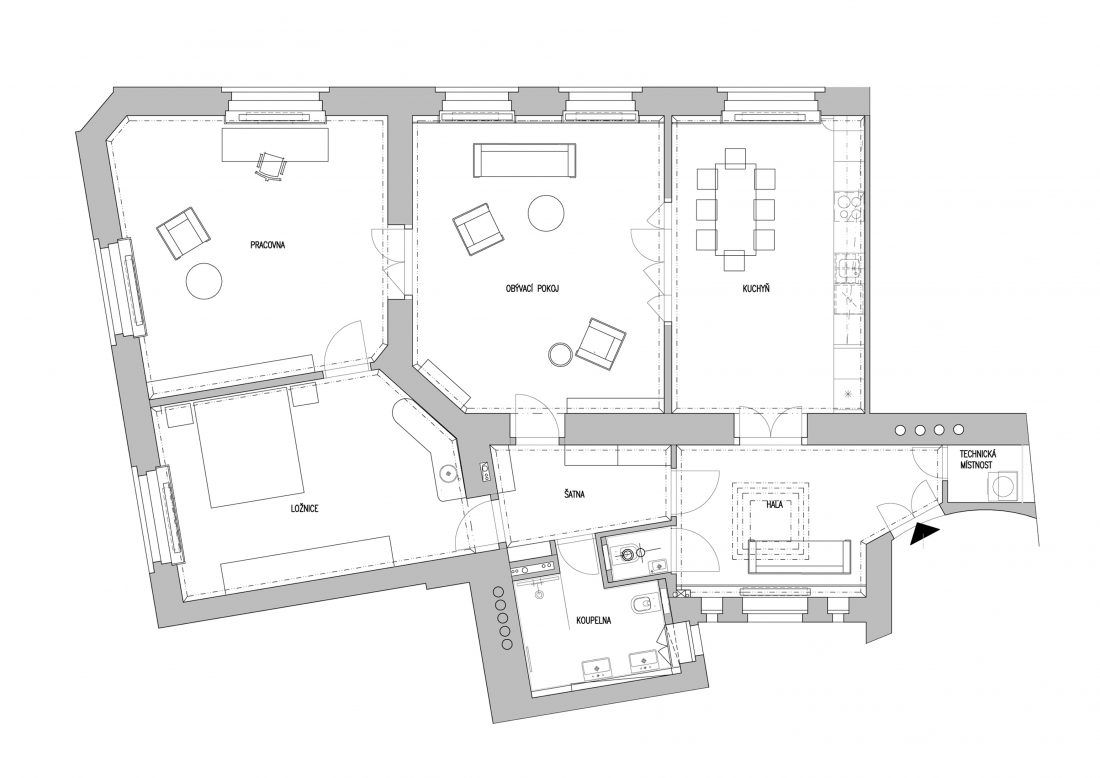
Cílem rekonstrukce bytu 3+1 o velikosti 131 m2 bylo především obnovit původní prostory, které za léta střídání majitelů byly dost zanedbané. V celém bytě proto byly zachovány cenné architektonické a uměleckořemeslné detaily a prvky jako původní kazetové dveře, mosazné dveřní a okenní kování. Největší zásah dostala koupelna s toaletou. Toto místo získalo zcela novou dispozici. Díky tomu se navíc rozšířil okolní obytný prostor.

Koupelna je velmi strohá a jednoduchá, obložena bílým mramorem, což přesně zapadá do dobového celku interiéru.

Vstupní hala nabízí praktický prostor pro činnosti vhodné pro tuto místnost. Navíc se sem vešla ještě šatna a malá technická místnost s plynovým kotlem pro ústřední vytápění. 

Z haly se vstupuje do ložnice a obývacího pokoje. Dominantou obytné části jsou čtyřkřídlé skládací dveře, které nejen, že propojují kuchyň a obývák, ale také designově doplňují celkový prostor. Místu dodávají více světla a vzdušnosti.

Nábytek do ložnice, kuchyňská linka, knihovny, šatní skříně a kryty na radiátory jsou navrženy na přání majitele. Velmi unikátní je pak kosmetický stolek se zabudovaným umyvadélkem. Zajímavým detailem jsou dobové retro vypínače na světlo. V celém prostoru bylo použito minimum opakujících se barev v jemných světlých odstínech. Prostor je tak nádherně čistý, minimalistický a vzdušný.

Rekonstruovaný interiér se nachází v bloku úřednických nájemních domů v Břehové ulici na Praze 1. Objekt byl postaven roku 1911. Domy jsou kulturní nemovitou památkou a prohlášeny za památku světového kulturního dědictví UNESCO. Rekonstrukci si vzalo na starost Studio acht.

Podívejte se také:

Rekonstrukce mezonetového bytu na Starém Městě dokonale využila celý prostor

Interiér překypující noblesou a jednoduchostí nabízí stylové zázemí pro čtyřčlennou rodinu

Interiér v duchu první republiky je noblesní a nadčasový

Mramor je synonymem luxusu a krásy. Využijte jeho nadčasovost ve vašem interiéru

Diskuze

Doporučené pořady

Investování do zahraničních nemovitostí

Investování do zahraničních nemovitostí

Developerské projekty k prodeji

Developerské projekty k prodeji

Stavba není sen 9 - Hladina Slapy

Stavba není sen 9 - Hladina Slapy

Stavba není sen 8 - Praha Lysolaje

Stavba není sen 8 - Praha Lysolaje

Stavba není sen 10 - Rodinné domy na klíč

Stavba není sen 10 - Rodinné domy na klíč

Už máte klon umělé inteligence?

Už máte klon umělé inteligence?

Stavba není sen 7 - Molo Lipno Resort

Stavba není sen 7 - Molo Lipno Resort

Chátrající skvosty

Chátrající skvosty

Nejzajímavější hotely

Nejzajímavější hotely

Jak se žije v domě s inteligentní domácností?

Jak se žije v domě s inteligentní domácností?

Přemkovy rychlé rady pro zahrady

Přemkovy rychlé rady pro zahrady

Stavba není sen 6 - Yasmin apartmán

Stavba není sen 6 - Yasmin apartmán

Zdravý spánek

Zdravý spánek

Stavba není sen 5 - Rekonstrukce kanceláří

Stavba není sen 5 - Rekonstrukce kanceláří

Kuchyně plné inspirace

Kuchyně plné inspirace

Vybíráme krby a kamna

Vybíráme krby a kamna

Koupelny plné inspirace

Koupelny plné inspirace

Když řešíte vodu...

Když řešíte vodu...

Díla architektů a designérů

Díla architektů a designérů

Rady pro investice do nemovitostí

Rady pro investice do nemovitostí

Dům na klíč

Dům na klíč

Stavba není sen 4 - Aldrov Krkonoše

Stavba není sen 4 - Aldrov Krkonoše

Vybíráme audio do domácnosti

Vybíráme audio do domácnosti

Stavba není sen 3 - Javor apartmán

Stavba není sen 3 - Javor apartmán

Bydlení handicapovaných

Bydlení handicapovaných

RESTART Michaely Jonášové

RESTART Michaely Jonášové

Bydlení slavných

Bydlení slavných

Stavba není sen 2 - Rekonstrukce bytu

Stavba není sen 2 - Rekonstrukce bytu

Na kafe!

Na kafe!

Stavba není sen - Stavba domu

Stavba není sen - Stavba domu

Vybíráme okna

Vybíráme okna

Jak se vyrábí dřevostavby

Jak se vyrábí dřevostavby


Spolupracujeme

Zajímá vás architektura?


© 2025 Living Media s.r.o.
Vytvořeno v Beneš & Michl
Zavřít reklamu